Property Type
Apartment, Two Apartment House
Parking
Garage: Yes, 0 parking
MLS #
1285914
Size
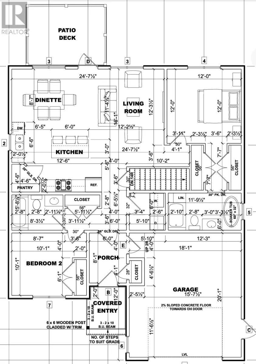
2420 sqft
Basement
-
Listed on
-
Lot size
-
Tax
-
Days on Market
-
Year Built
2025
Maintenance Fee
-